Rif: CMFIANO02
FIANO ROMANO
ROMA
FIANO ROMANO (RM) VIA CIVITELLESE , BIVIO VIA GUANCE ROSSE .
FABBRICATO CIELO TERRA DA COMPLETARE , ALLO STATO RUSTICO CON PROGETTO APPROVATO PER ABITAZIONE , GARAGE E CANTINA .
TERRENO E GIARDINO ASSEGNATO PARI A MQ. 1500.
La IMMOBILEDIL ha il piacere di presentare in vendita un immobile unico nel suo genere per la posizione , per la particolare conformazione del terreno che offre aree pianeggianti alternate ad un piccolo bosco di querce al riparo dalla strada e con la giusta riservatezza che merita.
La proprietà consta di un fabbricato disposto su due livelli fuori terra (stato rustico)
Il progetto realizzato prevede una abitazione al piano primo catastale di circa 57 mq. con zona giorno cucina a vista , un bagno, camera e studio/cameretta ed un portico di circa 20 mq. che offre una generosa luminosità ed un panorama unico con esposizione sud.
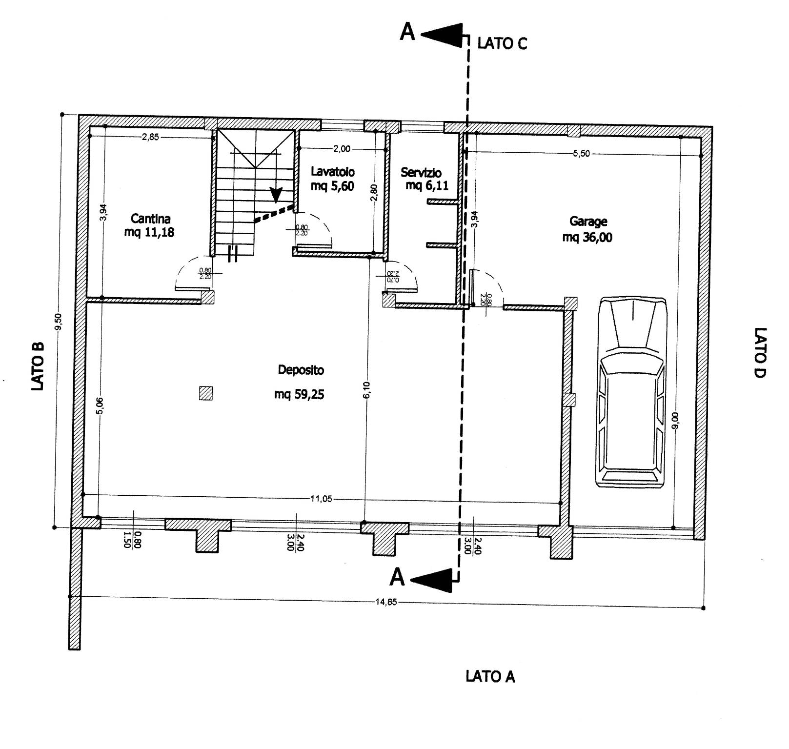
La superficie prevista al piano terra - seminterrato (catastale) di circa 140 mq. è destinata una buona parte a magazzino , cantina e servizi ed in parte a garage (a servizio dell'abitazione principale al piano primo) .
Le utenze sono tutte dirette , acqua pubblica, energia elettrica e allaccio alla pubblica fognatura (da collegare ).
I costi relativi al completamento delle opere edilizie sono calcolabili in base alle esigenze della potenziale clientela interessata all'acquisto e alle loro esigenze con una base minima prevista pari a circa 80.000 euro (+ iva come per legge) per le opere interne e circa 20.000 euro per quelle esterne di sistemazione recinsioni e cancelli.
L'immobile per la sua esposizione si presta bene all' adeguamento alle normative green per il risparmio energetico , alla raccolta acque piovane per irrigazione del giardino , all'appilcazione delle tegole o pannelli fotovoltaici per autoproduzione dell'energia elettrica e rivendita delle eccedenze.
CHIEDETE IN APPUNTAMENTO LA CONSULENZA TECNICA URBANISTICA ED ENERGETICA PER OTTIMIZZARE AL MEGLIO IL VOSTRO ACQUISTO.
Siamo a disposizione per tutte le informazioni in relazione all'immobile e per concordare visite e sopralluoghi .
Consulente dedicata Agente Monica Cavallaro 0686201234 - monica@immobiledil.it
FABBRICATO CIELO TERRA DA COMPLETARE , ALLO STATO RUSTICO CON PROGETTO APPROVATO PER ABITAZIONE , GARAGE E CANTINA .
TERRENO E GIARDINO ASSEGNATO PARI A MQ. 1500.
La IMMOBILEDIL ha il piacere di presentare in vendita un immobile unico nel suo genere per la posizione , per la particolare conformazione del terreno che offre aree pianeggianti alternate ad un piccolo bosco di querce al riparo dalla strada e con la giusta riservatezza che merita.
La proprietà consta di un fabbricato disposto su due livelli fuori terra (stato rustico)
Il progetto realizzato prevede una abitazione al piano primo catastale di circa 57 mq. con zona giorno cucina a vista , un bagno, camera e studio/cameretta ed un portico di circa 20 mq. che offre una generosa luminosità ed un panorama unico con esposizione sud.
La superficie prevista al piano terra - seminterrato (catastale) di circa 140 mq. è destinata una buona parte a magazzino , cantina e servizi ed in parte a garage (a servizio dell'abitazione principale al piano primo) .
Le utenze sono tutte dirette , acqua pubblica, energia elettrica e allaccio alla pubblica fognatura (da collegare ).
I costi relativi al completamento delle opere edilizie sono calcolabili in base alle esigenze della potenziale clientela interessata all'acquisto e alle loro esigenze con una base minima prevista pari a circa 80.000 euro (+ iva come per legge) per le opere interne e circa 20.000 euro per quelle esterne di sistemazione recinsioni e cancelli.
L'immobile per la sua esposizione si presta bene all' adeguamento alle normative green per il risparmio energetico , alla raccolta acque piovane per irrigazione del giardino , all'appilcazione delle tegole o pannelli fotovoltaici per autoproduzione dell'energia elettrica e rivendita delle eccedenze.
CHIEDETE IN APPUNTAMENTO LA CONSULENZA TECNICA URBANISTICA ED ENERGETICA PER OTTIMIZZARE AL MEGLIO IL VOSTRO ACQUISTO.
Siamo a disposizione per tutte le informazioni in relazione all'immobile e per concordare visite e sopralluoghi .
Consulente dedicata Agente Monica Cavallaro 0686201234 - monica@immobiledil.it
Consistenze
| Descrizione | Superficie | Sup. comm. |
|---|---|---|
| Principali | ||
| Immobile - 1° piano | 57 Mq | 57 Mqc |
| Terrazza - 1° piano | 20 Mq | 6 Mqc |
| Cantina - seminterrato | 70 Mq | 18 Mqc |
| Box/Garage - seminterrato | 36 Mq | 18 Mqc |
| Altro - seminterrato | 12 Mq | 1 Mqc |
| Terreno - piano terra | 1.500 Mq | 75 Mqc |
| Totale | 175 Mqc | |






