Rif: SS2025
SANTA MARINELLA
ROMA
PREZZO AGGIORNATO !!
SANTA SEVERA -
In Via Vittorio Veneto, in posizione silenziosa e riservata comunque vicina al lungomare, raggiungibile a piedi in pochi minuti , proponiamo una proprietà esclusiva facente parte di una costruzione quadrifamiliare edificata nel 1973 su licenza edilizia rilasciata dal Comune di Santa Marinella e dotata di certificazione di abitabilità del 1976 .
Le abitazioni sono due non comunicanti tra loro , con possibilità di essere catastalmente accorpate in un unico immobile.
PRIMA ABITAZIONE AL PIANO TERRA :
Abitazione di categoria A/2 composta da Salone, cucinotto, camera da letto , bagno con doccia e ripostiglio
(proveniente da cambio di destinazione d'uso di locale accessorio REGOLARMENTE CONDONATA)
SECONDA ABITAZIONE AI PIANI PRIMO E SECONDO:
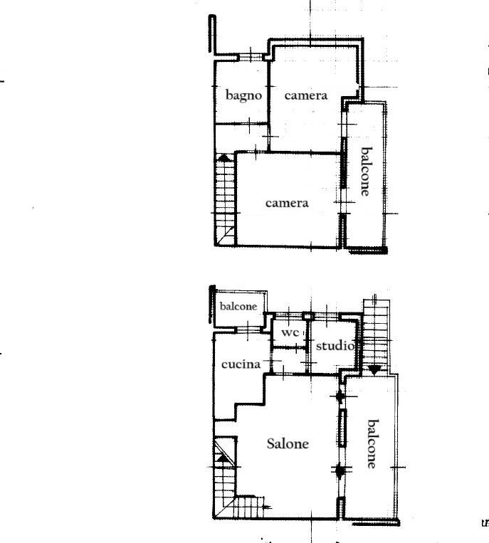
Categoria A/7 composta da Salone con camino e balcone vivibile , cucinotto con balcone , bagnetto e studio ; un' elegante scala in legno conduce al piano superiore dove si trovano due camere matrimoniali con balcone in comune , disimpegno e bagno con doccia ..
Le due unità immobiliari sono servite da un grande giardino completamente ripavimentato di recente con rivestimenti eleganti di alta qualità , piante ornamentali di vario tipo e barbeque in muratura . La proprietà è allacciata alla rete gas/metano comunale ed alla rete fognaria . Ambedue le unità immobiliari sono dotate di impianto di riscaldamento a radiatori e produzione acqua calda , inoltre è presente un serbatoio per le riserve di acqua qualora d'estate ve ne fosse la necessità.
La casa è perfettamente manutenuta , finestre e persiane sono in perfetto stato , impreziosite da grate di sicurezza installate di recente , i balconi del primo e secondo piano sono stati ripavimentati con la stessa tipologia di rivestimento utilizzata in giardino che dona eleganza e raffinatezza a questa splendida proprietà . Il lungomare si può raggiungere a piedi in 5 minuti ed a 300 mt sono presenti stabilimenti balneari attrezzati nonchè rimessaggio barche.
Questo immobile è destinato a chi desidera una residenza vicino al mare, fruibile tutto l'anno non solo d'estate, in uno dei posti più esclusivi del litorale di Santa Severa ..
Per informazioni più dettagliate e prenotazione visite in loco non esitate a contattarci ..
I dati pubblicati inerenti le caratteristiche degli immobili sono da intendersi indicativi e non contrattuali, in particolare i dati relativi alla superficie indicata, all'anno di costruzione e ristrutturazione dell'immobile, ed alle caratteristiche in generale. L'agenzia si riserva il diritto di apportare modifiche anche sostanziali a tali caratteristiche, senza alcun vincolo contrattuale nei confronti del visitatore / acquirente e senza alcun preavviso.
SANTA SEVERA -
In Via Vittorio Veneto, in posizione silenziosa e riservata comunque vicina al lungomare, raggiungibile a piedi in pochi minuti , proponiamo una proprietà esclusiva facente parte di una costruzione quadrifamiliare edificata nel 1973 su licenza edilizia rilasciata dal Comune di Santa Marinella e dotata di certificazione di abitabilità del 1976 .
Le abitazioni sono due non comunicanti tra loro , con possibilità di essere catastalmente accorpate in un unico immobile.
PRIMA ABITAZIONE AL PIANO TERRA :
Abitazione di categoria A/2 composta da Salone, cucinotto, camera da letto , bagno con doccia e ripostiglio
(proveniente da cambio di destinazione d'uso di locale accessorio REGOLARMENTE CONDONATA)
SECONDA ABITAZIONE AI PIANI PRIMO E SECONDO:
Categoria A/7 composta da Salone con camino e balcone vivibile , cucinotto con balcone , bagnetto e studio ; un' elegante scala in legno conduce al piano superiore dove si trovano due camere matrimoniali con balcone in comune , disimpegno e bagno con doccia ..
Le due unità immobiliari sono servite da un grande giardino completamente ripavimentato di recente con rivestimenti eleganti di alta qualità , piante ornamentali di vario tipo e barbeque in muratura . La proprietà è allacciata alla rete gas/metano comunale ed alla rete fognaria . Ambedue le unità immobiliari sono dotate di impianto di riscaldamento a radiatori e produzione acqua calda , inoltre è presente un serbatoio per le riserve di acqua qualora d'estate ve ne fosse la necessità.
La casa è perfettamente manutenuta , finestre e persiane sono in perfetto stato , impreziosite da grate di sicurezza installate di recente , i balconi del primo e secondo piano sono stati ripavimentati con la stessa tipologia di rivestimento utilizzata in giardino che dona eleganza e raffinatezza a questa splendida proprietà . Il lungomare si può raggiungere a piedi in 5 minuti ed a 300 mt sono presenti stabilimenti balneari attrezzati nonchè rimessaggio barche.
Questo immobile è destinato a chi desidera una residenza vicino al mare, fruibile tutto l'anno non solo d'estate, in uno dei posti più esclusivi del litorale di Santa Severa ..
Per informazioni più dettagliate e prenotazione visite in loco non esitate a contattarci ..
I dati pubblicati inerenti le caratteristiche degli immobili sono da intendersi indicativi e non contrattuali, in particolare i dati relativi alla superficie indicata, all'anno di costruzione e ristrutturazione dell'immobile, ed alle caratteristiche in generale. L'agenzia si riserva il diritto di apportare modifiche anche sostanziali a tali caratteristiche, senza alcun vincolo contrattuale nei confronti del visitatore / acquirente e senza alcun preavviso.
Consistenze
| Descrizione | Superficie | Sup. comm. |
|---|---|---|
| Principali | ||
| Immobile - piano terra | 54 Mq | 54 Mqc |
| Immobile - 1° piano | 40 Mq | 40 Mqc |
| Immobile - 2° piano | 40 Mq | 40 Mqc |
| Accessorie | ||
| Balcone - 1° piano | 2 Mq | 1 Mqc |
| Balcone - 1° piano | 10 Mq | 3 Mqc |
| Balcone - 2° piano | 8 Mq | 2 Mqc |
| Giardino/Resede | 135 Mq | 14 Mqc |
| Totale | 154 Mqc | |






